400-003-8066
您所在的位置: 首頁 > 資訊頻道 > 設計規範 > 在线免费观看羞羞视频場館 > 在线免费观看羞羞视频建築設計規範JGJ31-2003
來源:ZOBO羞羞APP大全 發布日期 2023-04-13 瀏覽:
因篇幅有限請到資料下載 下載完整文件。
還可以了解更多關於會議室解決方案、產品和案例 等信息。
還可以了解更多關於在线免费观看羞羞视频場館解決方案、產品和案例 等信息。
還可以了解更多關於劇場成人羞羞国产视频解決方案、產品和案例 等信息。
還可以了解更多關於學校教育 解決方案、產品和案例 等信息。
1 總則
1.0.1 為保證在线免费观看羞羞视频建築的設計質量,使之符合使用功能、安全、衛生、技術、經濟及在线免费观看羞羞视频工藝等方麵的基本要求,製定本規範。
1.0.2 本規範適用於供比賽和訓練用的在线免费观看羞羞视频場、在线免费观看羞羞视频館、遊泳池和遊泳館的新建、改建和擴建工程設計。
1.0.3 當在线免费观看羞羞视频建築有多種用途(或功能)時,其技術標準應按其主要用途確定建築標準,其他用途則適當兼顧。
1.0.4 在线免费观看羞羞视频建築設計應為運動員創造良好的比賽和訓練環境,為觀眾創造安全和良好的視聽環境,為工作人員創造方便有效的工作環境。
1.0.5 在线免费观看羞羞视频建築設計應結合我國國情,根據各地區的氣候和地理差異、經濟和技術發展水平、民族習慣以及傳統因素,因地製宜地進行設計。應遵循可持續性發展的原則。
1.0.6 在线免费观看羞羞视频設施,尤其是為重事所建的設施應充分考慮賽後的使用和經營,以保證大地發揮其社會效益和經濟效益。
1.0.7 在线免费观看羞羞视频建築等級應根據其使用要求分級,且應符合表1.0.7規定。
表1.0.7 在线免费观看羞羞视频建築等級
1.0.8 不同等級在线免费观看羞羞视频建築結構設計使用年限和耐火等級應符合表1.0.8的規定。
表1.0.8 在线免费观看羞羞视频建築的結構設計使用年限和耐火等級
1.0.9 在進行正式比賽時,在线免费观看羞羞视频建築設計必須符合在线免费观看羞羞视频主管部門頒布的各項在线免费观看羞羞视频競賽規則中對建築提出的要求。進行比賽時,同時還必須滿足相關國/際在线免费观看羞羞视频組織的有關標準和規定。
1.0.10 在线免费观看羞羞视频建築設計除應符合本規範外,尚應符合現行有關強製性標準的規定。
條文說明
1 總則
1.0.1 隨著我國的改革開放,人民生活水平的提高,閑暇時間的增加,在线免费观看羞羞视频和休閑事業有了很大的發展,因此在线免费观看羞羞视频設施也進入一個新的建設高潮。在线免费观看羞羞视频設施的建設投資大,影響麵廣,並存在使用功能、安全、衛生、技術、經濟等方麵的問題,將直接影響設施的質量。因此提出相關要求,在在线免费观看羞羞视频建築設計中應遵照執行。
1.0.2 在线免费观看羞羞视频設施因在线免费观看羞羞视频項目使用性質、使用對象的不同而有很多類型,一個規範很難全部涵蓋,經與各主管方麵商討,用本條對本規範所適用的範圍予以界定。
1.0.3 在我國由計劃經濟向社會主義市場經濟轉變的過程中,在线免费观看羞羞视频的產業化也提上議事日程,因此本條界定在线免费观看羞羞视频建築多功能使用時所應遵循的設計原則。
1.0.4 本條從使用環境的角度提出在线免费观看羞羞视频建築的基本目標。
1.0.5 由於我國地域遼闊,民族眾多,自然氣候、地理條件有很大差異,如氣溫和溫差、地質條件和抗震、雨雪、施工技術和管理水平等,在設計中需因地製宜,不能一概而論。近年來,可持續性發展的戰略原則日益為人們所認識,因此在設計中須加強這方麵的應用和探索。
1.0.6 由於在线免费观看羞羞视频設施的特殊使用方式和對象,因此對這些設施尤其是為特殊重大比賽所建的設施,在短期賽事之後,更長期的賽後使用問題就非常突出,國/內外有許多正反方麵的經驗和教訓,故作為獨立的條文專門提出,以期引起各有關方麵的重視。
1.0.7 本條是設施等級分級的基礎。參考在线免费观看羞羞视频總局原在线免费观看羞羞视频設施標準管理處擬《公共在线免费观看羞羞视频場建設等級標準》(草案)中的規定,同時也與在线免费观看羞羞视频總局在线免费观看羞羞视频事業中期規劃的建設目標分類要求大致協調。便於按不同要求區別對待,以保證其技術要求。
按照國/際田聯的分類規定,將世界/杯、世界錦標賽和奧運會列為一類;洲際、地區和區域錦標賽,洲際、地區和區域杯賽以及田聯小組運動會列為二類;把兩個或兩個以上,或幾個會員聯合舉行的比賽,國/際田聯批準的國/際邀請賽,地區協會批準的國/際邀請賽和比賽作為第三類;一個會員特別批準的,外國運動員可以參加的其他比賽和比賽作為第四類;不分類的國/內比賽作為第五類。也可以作為本條分類的對照參考。
1.0.8 本條參照《建築結構可靠度設計統一標準》和《建築設計防火規範》CBJ 16製訂。根據在线免费观看羞羞视频設施的特點及我國的經濟狀況和技術發展,此條的耐火等級有所提高。見表1。
表1 結構設計工程壽命
1.0.9 由於在线免费观看羞羞视频建築設計涉及有關在线免费观看羞羞视频項目競賽規則中對於建築設計的有關要求很多,除必要的在條文中予以強調外,一般性要求不再重複。另外有關競賽規則和國/際單項在线免费观看羞羞视频組織的有關規定,會隨時有所修改,故使用中需及時參照有關標準和規定。
1.0.10 在线免费观看羞羞视频建築設計涉及建築結構、防火、熱工、節能、隔聲、采光、照明、給排水、暖通空調、強電、弱電、環保、衛生等各種專/業,各專/業已有規範規定的除必要的予以重申外,其他不再重複。
2 術語
2.0.1 在线免费观看羞羞视频建築 sports building
作為在线免费观看羞羞视频競技、在线免费观看羞羞视频教學、在线免费观看羞羞视频娛樂和在线免费观看羞羞视频鍛煉等活動之用
2.0.2 在线免费观看羞羞视频設施 sports facilities
作為在线免费观看羞羞视频競技、在线免费观看羞羞视频教學、在线免费观看羞羞视频娛樂和在线免费观看羞羞视频鍛煉等活動的在线免费观看羞羞视频建築、場地、室外設施以及在线免费观看羞羞视频器材等的總稱。
2.0.3 在线免费观看羞羞视频場 stadium
具有可供在线免费观看羞羞视频比賽和其他表演用的寬敞的室外場地同時為大量觀眾提供座席的建築物。
2.0.4 在线免费观看羞羞视频館 sports hall
配備有專門設備而供能夠進行球類、室內田徑、冰上運動、體操(技巧)、武術、拳擊、擊劍、舉重、摔跤、柔道等單項或多項室內競技比賽和訓練的在线免费观看羞羞视频建築。主要由比賽和練習場地、看台和輔助用房及設施組成。在线免费观看羞羞视频館根據比賽場地的功能可分為綜合在线免费观看羞羞视频館和專項在线免费观看羞羞视频館;不設觀眾看台及相應用房的在线免费观看羞羞视频館也可稱訓練房。
2.0.5 遊泳設施 natatorial facilities
能夠進行遊泳、跳水、水球和花樣遊泳等室內外比賽和練習的建築和設施。室外的稱作遊泳池(場),室內的稱作遊泳館(房)。主要由比賽池和練習池、看台、輔助用房及設施組成。
2.0.6 競賽區 arena
由觀眾席圍合的運動場地及其輔助區域,包括競技場地和緩衝區。
2.0.7 跑道 track
在线免费观看羞羞视频場內用作徑賽的場地。正式比賽的跑道為全長400m的長圓形,並對場地方位、麵層、規格有嚴格的要求。
2.0.8 合成麵層 synthetic surface
用人工合成方法製成的地麵麵層,在田徑及一些球類項目中,要求采用符合該項目要求的合成麵層。
2.0.9 足球場 football pitch
供進行足球比賽的長方形場地。
2.0.10 看台 stands
在线免费观看羞羞视频設施中設置有觀眾席位,並能為觀眾提供良好的觀看條件和安全方便的疏散條件的結構體。
2.0.11 觀眾席 seats for the spectator
在线免费观看羞羞视频設施中供觀眾觀看比賽的席位。
2.0.12 視線 sightline
由觀眾眼睛至場地設計視點的連線。
2.0.13 視點 focus point
為保證觀眾的觀看質量,在視線設計時,根據不同競賽項目和不同標準,保證觀眾看到比賽場地的全部或絕大部分時所確定的場地設計平麵位置。
2.0.14 視距 viewing distance
由觀眾眼睛到比賽場地中被觀察物體的距離。
2.0.15 視角 angle of sight
觀眾視線與視平線之間的夾角,視角過大將造成視覺上的透視變形。
2.0.16 固定座席 fixing seating
在线免费观看羞羞视频設施中固定在看台結構上的觀眾席位。
2.0.17 活動座席 retractable seating
具有特殊構造可將座椅收納和移動的座席。
2.0.18 記者席 press seats
在正式比賽中,看台座位中供文字記者和廣播電視記者等媒體記者使用的專用座位。
2.0.19 包廂 box
在看台觀眾席中,為滿足部分觀眾的特殊要求而設置的房間。一般由觀看席位和休息室等構成。
2.0.20 座寬 seats width
觀眾席位的寬度。
2.0.21 排深 row depth
觀眾席位排與排之間的距離。
2.0.22 多功能使用 multi-purpose usage
在线免费观看羞羞视频設施滿足多種在线免费观看羞羞视频項目的使用或除在线免费观看羞羞视频項目外其他功能的使用方式。
2.0.23 訓練房 practice room
供在线免费观看羞羞视频項目訓練用的廳室。
2.0.24 熱身場地 warming up area
在线免费观看羞羞视频競賽時,可供運動員在正式比賽之前熱身活動的區域。其規格應符合各不同項目的要求。
2.0.25 興奮劑檢測室 doping control room
在正式在线免费观看羞羞视频比賽中,對運動員是否服用禁物進行測試取樣的專用房間。
2.0.26 遊泳池 swimming pool
供遊泳比賽或訓練的專用水池。比賽池的規格尺寸規則上有明確要求,在滿足技術條件的前提下,也可以進行其他水上項目的比賽和訓練。
2.0.27 跳水池 diving pool
供跳水比賽和訓練的專用水池。其規格、設施均應滿足規則的嚴格要求。
2.0.28 訓練池 training pool
供訓練用的水池,其規格及設施要求需根據其訓練項目確定。
2.0.29 泳道 swimming lane
遊泳池比賽時,用水麵浮標和池底、池壁的標誌線來加以界定的比賽活動區。
2.0.30 出發台 starting block
遊泳池出發端的專用設施,其規格等需滿足規則的要求。
2.0.31 觸板touch pads
正式遊泳比賽時,安裝在遊泳池端線池壁的專用電子計時裝置。
2.0.32 池壁 edge of the pool
遊泳沒施各種水池的垂直壁麵,需根據不同項目要求設置有關標誌和設施。
2.0.33 池岸 beacharea
遊泳設施水池邊,以及水池之間的區域。
2.0.34 跳板 diving boards
跳板項目的比賽設施,分1m和3m兩種,其跳板高度指自板麵至水麵,材料和麵層應符合規則規定。
2.0.35 跳台 diving platform
跳台項目的比賽設施,分5m、7.5m、1Om三種,跳台的設置、麵層、水深、周圍空間等均應滿足規則的要求。
2.0.36 水下照明 underwater lighting
根據比賽項目和使用要求,安裝在水池水下的照明器。
2.0.37 水下羞羞漫画官网 underwater sound
根據比賽項目和使用要求,安裝在水池水下的羞羞漫画官网器材。
2.0.38 升降池底 adjustable floor
遊泳池根據使用的不同要求通過變更池底高度調節水深的一種技術手段。
條文說明
2 術語
本章英文部分參照全國自然科學名詞審定委員會公布之《建築園林城市規劃名詞》(1996)以及有關資料的詞條整理而成。同時也參照了國外有關出版物的相關詞條,由於國/際標準中沒有這方麵的統一規定,各英語使用詞匯也不盡相同,故英語部分僅作為推薦英文對應詞。
涉及在线免费观看羞羞视频方麵的術語很多,尤其是涉及與在线免费观看羞羞视频競賽規則有關的部分,考慮到本規範的使用對象,故隻列出與建築設計有關的方麵。
3 基地和總平麵
3.0.1 在线免费观看羞羞视频建築基地的選擇,應符合城鎮當地總體規劃和在线免费观看羞羞视频設施的布局要求,講求使用效益、經濟效益、社會效益和環境效益。
3.0.2 基地選擇應符合下列要求:
1 適合開展運動項目的特點和使用要求;
2 交通方便。根據在线免费观看羞羞视频設施規模大小,基地至少應分別有一麵或二麵臨接城市道路。該道路應有夠的通行寬度,以保證疏散和交通;
3 便於利用城市已有基礎設施;
4 環境較好。與汙染源、高壓線路、易燃易爆物品場所之間的距離達到有關防護規定,防止洪澇、滑坡等自然災害,並注意在线免费观看羞羞视频設施使用時對周圍環境的影響。
3.0.3 市級在线免费观看羞羞视频設施用地麵積不應小於表3.0.3的規定。
表3.0.3 市級在线免费观看羞羞视频設施用地麵積
3.0.4 總平麵設計應符合下列要求:
1 全/麵規劃遠、近期建設項目,一次規劃、逐步實施,並為可能的改建和發展留有餘地;
2 建築布局合理,功能分區明確,交通組織順暢,管理維修方便,並滿足當地規劃部門的相關規定和指標;
3 滿足各運動項目的朝向、光線、風向、風速、安全、防護等要求;
4 注重環境設計,充分保護和利用自然地形和天然資源(如水麵、林木等),考慮地形和地質情況,減少建設投資。
3.0.5 出入口和內部道路應符合下列要求:
1 總出入口布置應明顯,不宜少於二處,並以不同方向通向城市道路。觀眾出入口的有效寬度不宜小於0.15m/百人的室外安全疏散指標;
2 觀眾疏散道路應避免集中人流與機動車流相互幹擾,其寬度不宜小於室外安全疏散指標;
3 道路應滿足通行消防車的要求,淨寬度不應小於3.5m,上空有障礙物或穿越建築物時淨高不應小於4m。在线免费观看羞羞视频建築周圍消防車道應環通;當因各種原因消防車不能按規定靠近建築物時,應采取下列措施之一滿足對火災撲救的需要:
1) 消防車在平台下部空間靠近建築主體;
2) 消防車直接開入建築內部;
3) 消防車到達平台上部以接近建築主體;
4) 平台上部設消火栓。
4 觀眾出入口處應留有疏散通道和集散場地,場地不得小於0.2m2/人,可充分利用道路、空地、屋頂、平台等。
3.0.6 停車場設計應符合下列要求:
1 基地內應設置各種車輛的停車場,並應符合表3.0.6的要求,其麵積指標應符合當地有關主管部門規定。停車場出人口應與道路連接方便;
2 如因條件限製,停車場也可在鄰近基地的地區,由當地市政部門統一設置。但部分專用停車場(貴賓、運動員、工作人員等)宜設在基地內;
表3.0.6 停車場類別
3 承擔正規或國/際比賽的在线免费观看羞羞视频設施,在設施附近應設有電視轉播車的停放位置。
3.0.7 基地的環境設計應根據當地有關綠化指標和規定進行,並綜合布置綠化、花壇、噴泉、坐凳、雕塑和小品建築等各種景觀內容。綠化與建築物、構築物、道路和管線之間的距離,應符合有關規定。
3.0.8 總平麵設計中有關無障礙的設計應符合現行行業標準《城市道路和建築物無障礙設計規範》JGJ 50 的有關規定。
條文說明
3 基地和總平麵
3.0.1 在线免费观看羞羞视频事業兼有社會化、產業化、公益化等方麵的特征,在线免费观看羞羞视频設施的布局和建設都將對城市、區域、社區乃至學校、單位等產生較大影響,與人民群眾的健身休閑有密切關係,因此在布局設點時,必須十分注意本條提出的四個效益。
3.0.2 本條提示在线免费观看羞羞视频設施一般占地較大,除各種設施本身占地以外,還必須留出足夠的安全保護空間、集散空間、綠化空間與道路空間,按照體委和建設部1986年頒布的《城市公共在线免费观看羞羞视频設施用地定額指標暫行規定》中的計算方法,基地應包括在线免费观看羞羞视频設施用地和其他用地二部分,後者包括觀眾集散用地、道路用地、綠化和附屬設施用地等。
3.0.3 本條根據體委和建設部在1986年頒布的《城市公共在线免费观看羞羞视频運動設施用地定額指標暫行規定》中有關指標摘編而成。從實際情況看,影響用地麵積大小的因素很多,可參照該暫行規定的說明。普通高校在线免费观看羞羞视频設施的麵積指標可參看1992 年建設部、計委和教委頒發的《普通高等學校建築規劃麵積指標》。當前許多地方也根據當地情況製定了相應法規,如廈門市人大在2001年的《廈門市在线免费观看羞羞视频設施建設與保護規定》中即要求市級公共在线免费观看羞羞视频設施每千人不低於170m2。
另外本條還專門注明,在一些特殊情況下達不到相應指標下限時,應在規劃和建築手段上采用專門措施,以彌補麵積指標上的不足。
3.0.4 在线免费观看羞羞视频中/心由於占地較大,項目內容多,使用功能複雜,因財力和其他原因限製,常常分期分階段實施,故本條提出了總平麵設計的基本原則。國/內、外一些在线免费观看羞羞视频中/心的用地麵積參見表2。
表2 國/內外在线免费观看羞羞视频中/心用地比較
3.0.5 本條規定保證基地內部的交通疏散以及與城市公共道路的聯係,按在线免费观看羞羞视频總局擬定《公共在线免费观看羞羞视频場建設等級標準》(草案)中的臨街麵的規定,如表3所示:
表3 基地臨街麵
消防管理部門提出,一些在线免费观看羞羞视频建築周圍常為一些地層建築和裙房包圍,給消防撲救帶來了困難。故專門針對這樣情況提出了相應措施作為補充。
3.0.6 停車場的設置需根據在线免费观看羞羞视频設施的規模、使用特點、用地位置、交通狀況和比賽特點等內容確定。因我國各地公安交通管理部門對停車指標要求不盡相同,故此處不再列出。
關於電視轉播車的規格,見表4的數據,供參考。
表4 電視轉播車參考規格
3.0.7 在线免费观看羞羞视频總局擬定《公共在线免费观看羞羞视频場建設等級標準》(草案)中提出基地綠化麵積不宜小於25%(不包括足球場草地麵積),因實際建設用地情況各不相同,且各地對綠化率計算方法也分別有所規定,故不另列出。
3.0.8 在线免费观看羞羞视频設施有眾多人數參與,傷殘人觀看和參與在线免费观看羞羞视频活動也是其中的重要內容,同時這也體現了社會文明程度和社會對傷殘人的關心,當前我國在线免费观看羞羞视频設施中完全滿足《城市道路和建築物無障礙設計規範》JGJ 50要求的在线免费观看羞羞视频設施還較少,故專門列出本條予以強調。
4 建築設計通用規定
4.1 一般規定
4.1.1 在线免费观看羞羞视频建築應根據所在地區、使用性質、服務對象、管理方式等合理確定建築的等級和規模。
4.1.2 比賽建築主要由比賽場地、訓練場地、看台、各種輔助用房和設施等組成。應在根據競賽規則和有關規定滿足比賽使用的同時,兼顧訓練的需要。訓練建築由運動場地和一些輔助用房及設施組成,可不設看台或僅設少量觀摩席位。
4.1.3 確定建築平台、剖麵、結構選型和空間造型時,應根據建築位置、項目特點和使用要求注意其合理性、經濟性和先/進性。
4.1.4 根據比賽和訓練的使用要求,應確定建築功能分區。可分為競賽區、觀眾區、運動員區、競賽管理區、新聞媒體區、貴賓區、場管運營區等。應根據分區妥善安排運動場地、看台、各類用房和設施的位置,解決好各部分之間的聯係和分割要求。
4.1.5 根據功能分區應合理安排各類人員出入口。比賽用建築和設施應保證觀眾的安全和有序入場及疏散,應避免觀眾和其他人流(如運動員、貴賓等)的交叉。
4.1.6 在同一場地上應能開展不同的運動項目。內部輔助用房應有一定的適應性和靈活性,當若幹在线免费观看羞羞视频設施相連時,應考慮設備、附屬設施的綜合利用。
4.1.7 應結合運動項目的特點解決朝向、光線、風向、風速等對運動員和觀眾的影響。
4.1.8 根據當地氣候條件,應充分利用自然通風和天然采光。
4.1.9 應合理確定圍護結構,采取節能、節水措施。
4.1.10 在建築處理上應考慮身材高大運動員的使用特點;對一般群眾開放時,應考慮兒童、婦女老人等不同使用對象的特殊要求。
4.1.11 應考慮殘疾人參加的運動項目特點和要求,並應滿足殘疾觀眾的需求。
4.1.12 在线免费观看羞羞视频建築應考慮維護管理的方便和經濟性,使用中發生緊急情況和意外事件時應有安全、可靠的對策。
條文說明
4.1 一般規定
4.1.1~4.1.2 在线免费观看羞羞视频建築由於所在地區、使用性質、服務對象、管理方式等因素,呈現出多種多樣的型製和模式,因此必須根據本條因地製宜、因時製宜、因使用製宜,合理確定其等級和規模,並以此為基礎決定其內容和房間組成。
4.1.3 由於在线免费观看羞羞视频建築使用的要求及結構大跨度、大空間的特點,因此在建築體型和結構選型上都有一定特色,但如何掌握適度,在國/內、外的在线免费观看羞羞视频設施建設中也有正反兩麵的實例。故本條提出必須因時、因地製宜,避免由於過分追求形式而影響使用或造成浪費的後果。
4.1.4~4.1.5 由於在线免费观看羞羞视频設施工藝複雜、使用人數多、安全要求嚴格,服務對象有不同類型,例如舉辦大型國/際比賽時就需要滿足一般觀眾、貴賓、運動員、記者、國/際組織人員、讚助商、工作人員等不同人員的不同需求,國/內一般比賽也應將觀眾和其他人流分開,而平時使用時又有另外的使用方式和要求,因此本條提出了功能分區和出入口安排的要求。
4.1.6 由於在线免费观看羞羞视频設施承擔項目和使用對象的不同,除比賽場地的靈活性外,在其內部用房的布置和使用上,應有較大的適應性和靈活性,在有關專用設備的配備上具有通用性,以利提高場地和房間的利用率,並減少不必要的浪費。
4.1.7~4.1.9 按照可持續發展的原則,充分考慮環保節能、節水的各種措施。
4.1.10~4.1.11 在线免费观看羞羞视频設施還必須考慮特殊使用群體的一些特殊要求,以利於他們觀看、參加比賽和使用這些設施,如條文中列出的高大運動員、傷殘人觀眾和運動員,使用設施的兒童、婦女和老人等。設施設計應符合現行行業標準《城市道路和建築物無障礙設計規範》JGJ 50的規定。
4.1.12 本條主要涉及在线免费观看羞羞视频設施的維護管理和應急對策。
應急對策係指由於在线免费观看羞羞视频設施中進行激烈的對抗比賽、大量觀眾的感情宣泄,以及在使用過程中的突發事件都要求在設施的設計上、設備的安排上有安全、可靠的對策,使之能夠適應緊急情況下觀眾的疏導、局麵的控製以及對緊急事件的及時處理。
4.2 運動場地
4.2.1 運動場地包括比賽場地和練習場地,其規格和設施標準應符合各運動項目規則的有關規定;當規則對比賽場地和設施的規格尺寸有正負公差限製時,必須嚴格遵守。
4.2.2 運動場地界線外圍必須按照規則滿足緩衝距離、通行寬度及安全防護等要求。裁判和記者工作區域要求、運動場地上空淨高尺寸應滿足比賽和練習的要求。
4.2.3 場地設計應符合下列要求:
1 場地地麵材料應滿足不同比賽和訓練的要求並符合規則規定;在多功能使用時,應考慮地麵材料變更和鋪設的可能性;
2 應滿足運動項目對場地的背景、劃線、顏色等方麵的有關要求;
3 場地應滿足不同比賽項目的照度要求;
4 應考慮場地運動器械的安裝、固定、更換和搬運需求。
4.2.4 場地的對外出入口應不少於二處,其大小應滿足人員出入方便、疏散安全和器材運輸的要求。
4.2.5 室外場地應采取有效的排水措施,設置必要的灑水設備,並應符合本規範第10.1.5條的規定。
4.2.6 場地和周圍區域的分隔應符合下列要求:
1 比賽場地與觀眾看台之間應有分隔和防護,保證運動員和觀眾的安全,避免觀眾對比賽場地的幹擾;
2 室外練習場地外圍及場地之間,應設置圍網,以方便使用和管理。
4.2.7 室外運動場地布置方向(以長軸為準)應為南北向;當不能滿足要求時,根據地理緯度和主導風向可略偏南北向,但不宜超過表4.2.7的規定。
表4.2.7 運動場長軸允許偏角
條文說明
4.2 運動場地
4.2.1~4.2.2 本條規定了場地規格和設施標準的要求,其具體尺寸詳見此後各章所述。另外也強調了對場地和設施規格尺寸的公差要求,因為這將直接影響到設施的等級以及所創造的成績和記錄能否為和相關國/際組織承認的問題。
不同等級的比賽對於場地的緩衝區和工作區,以及場地上空淨高的要求也直接影響到設施的等級和使用質量。有關要求在此後各章有所表述。
4.2.3 本條規定對在线免费观看羞羞视频設施比賽場地的要求。
4.2.4 本條規定場地出入口的要求。當在线免费观看羞羞视频設施有多功能使用或可能舉辦大型慶典和活動時,更需對出人口的設施、尺寸、數量有所考慮。
4.2.5 本條指定室外場地的給排水要求,在本規範10.1給水排水中將有具體規定。
4.2.6 出於安全和保證比賽順利進行的要求,本條對場地和周圍區域的分隔規定了必要的措施,另國/際足聯等有關組織對於場地安全問題也有專門規定,可作為參考。
4.2.7 由於地形和用地尺寸的限製,在室外場地布置時會產生一些困難,本條規定了不同緯度下場地允許的偏轉範圍,在執行中比賽場地應比訓練場地要求更嚴格,同時應考慮當地的風力和風向。
4.3 看台
4.3.1 看台設計應使觀眾有良好的視覺條件和安全方便的疏散條件。
4.3.2 看台平麵布置應根據比賽場地和運動項目,使多數席位處於視距短、方位好的位置。在正式比賽時,根據各項比賽的特殊需要應考慮劃分專用座席區。
4.3.3 觀眾看台功能分類應符合表4.3.3的規定。
表4.3.3 觀眾 看台功能分類
4.3.4 觀眾席位宜符合表4.3.4的規定。
表4.3.4 觀眾 席位
4.3.5 觀眾席尺寸不應小於表4.3.5的規定。
表4.3.5 觀眾席小尺寸
4.3.6 觀眾席縱走道之間的連續座位數目,室內每排不宜超過26個;室外每排不宜超過40個。當僅一側有縱走道時,座位數目應減半。
4.3.7 主席台的規模宜符合表4.3.7的規定。包廂的設置和位置可根據使用情況決定,主席台和包廂宜設單獨的出入口,並選擇視線較佳的位置。主席台應與其休息室聯係方便,並能直接通達比賽場地,與一般觀眾席之間宜適當分隔。
表4.3.7 主席台的 規模
4.3.8 看台安全出口和走道應符合下列要求:
1 安全出口應均勻布置,獨立的看台至少應有二個安全出口,且在线免费观看羞羞视频館每個安全出口的平均疏散人數不宜超過400~700人,在线免费观看羞羞视频場每個安全出口的平均疏散人數不宜超過1000~2000人。
注:設計時,規模較小的設施宜采用接近下限值;規模較大的設施宜采用接近上限值;
2 觀眾席走道的布局應與觀眾席各分區容量相適應,與安全出口聯係順暢。通向安全出口的縱走道設計總寬度應與安全出口的設計總寬度相等。經過縱橫走道通向安全出口的設計人流股數應與安全出口的設計通行人流股數相等;
3 安全出口和走道的有效總寬度均應按不小於表4.3.8的規定計算;
表4.3.8 疏散寬度指標
4.每一安全出口和走道的有效寬度除應符合計算外,還應符合下列規定:
1) 安全出口寬度不應小於1.1m,同時出口寬度應為人流股數的倍數,4股和4股以下人流時每股寬按0.55m計,大於4股人流時每股寬按0.5m計;
2) 主要縱橫過道不應小於1.1m(指走道兩邊有觀眾席);
3) 次要縱橫過道不應小於0.9m(指走道一邊有觀眾席);
4) 活動看台的疏散設計應與固定看台同等對待。
4.3.9 看台欄杆應符合下列要求:
1 欄杆高度不應低於0.9m,在室外看台後部危險性較大處嚴禁低於1.1m;
2 欄杆形式不應遮擋觀眾視線並保障觀眾安全。當設樓座時,欄杆下部實心部分不得低於0.4m;
3 橫向過道兩側至少一側應設欄杆;
4 當看台坡度較大、前後排高差超過0.5m時,其縱向過道上應加設欄杆扶手;采用無靠背座椅時不宜超過10排,超過時必須增設橫向過道或橫向欄杆;
5 欄杆的構造做法應經過結構計算,以確保使用安全。
4.3.10 看台應進行視線設計,視點選擇應符合下列要求:
1 應根據運動項目的不同特點,使觀眾看到比賽場地的全部或絕大部分,且看到運動員的全身或主要部分;
2 對於綜合性比賽場地,應以占用場地大的項目為基礎;也可以主要項目的場地為基礎,適當兼顧其他;
3 當看台內緣邊線(指首排觀眾席)與比賽場地邊線及端線(指視點軌跡線)不平行(即距離不等)時,首排計算水平視距應取小值或較小值;
4 座席俯視角宜控製在28°~30°範圍內;
5 看台視點位置應符合表4.3.10的規定。
表4.3.10 看台 視點位置
4.3.11.看台各排地麵升高應符合下列要求:
1.視線升高差(C值)應保證後排觀眾的視線不被前排觀眾遮擋,每排C值不應小於0.06m;
2.在技術、經濟合理的情況下,視點位置及C值等可采用較高的標準,每排C值宜選用0.12m;
4.3.12 室外看台上空的罩棚設計應符合下列要求:
1 罩棚的大小(覆蓋觀眾看台的麵積)可根據設施等級和使用要求等多種因素確定,主席台(貴賓席)、評論員和記者席等宜全部覆蓋;
2 應合理確定罩棚的造型和結構型式,並防止或減少罩棚結構和支柱對觀眾觀看比賽場地和大屏幕的影響;
3 當罩棚設檢修天橋時,應有高度不低於1.05m的防護欄杆。
條文說明
4.3 看台
4.3.1 本條說明觀眾看台所應滿足的基本要求,視覺條件指通視無遮擋,觀察對象分辨清楚,不變形失真等,疏散條件指觀眾能在規定的時間內安全、順暢到達安全區域。
4.3.2 不同的競賽項目對視距和看台方位有不同要求,所以多功能使用的設施需要滿足特定項目的視覺質量,又應有一定的彈性和兼容性,以田徑場和足球場為例,一般從足球比賽的視覺質量來作為評定標準,經研究理想的位置是由足球場4個角以150m為半徑劃圓所形成的中/心區域(接近以場地中/心半徑90m的正圓形)大視距為190m。
4.3.3 本條說明對不同等級的在线免费观看羞羞视频設施中,看台的功能分類及設定要求,其數目及是否增設應視比賽及媒體要求及在线免费观看羞羞视频設施的使用特點而決定。
4.3.4 本條規定各種等級在线免费观看羞羞视频設施觀眾席位的建議標準,其造型及用材應根據適用、美觀和經濟可能決定。
4.3.5 本條提出各種觀眾席的小尺寸要求,但在應用中需根據設施級別、設施標準等因素綜合確定。
4.3.6 本條主要保證觀眾使用方便及安全疏散對觀眾席的連續座位數目所提出的較高數字規定,並與《建築設計防火規範》的要求相一致。
4.3.7 對於主席台的要求在國外在线免费观看羞羞视频設施處理很不相同。國外對此處理比較一般,甚至有的不專門設置,國/內則比較重視,尤其是在有重要比賽和活動時,主席台的設置、數量、安全等因素顯得尤為突出,但在平時常被閑置,以致看台視覺質量好的區域使用率不高,因此需根據設施的特點、級別等因素決定其數量及使用方式,表5是國/內一些設施的主席台數量。
表5 國/內一些設施主席台數量(觀眾總數/主席台座位數)
4.3.8 在製訂本條文時,根據消防主管部門意見要求應與《建築設計防火規範》GBJ 16-87 一致,故在條文說明中,將該規範的條文說明全文轉錄於後,以利於使用。另外參照製訂了室外看台的安全疏散寬度要求。
《建築設計防火規範》第5.3.5條說明:
這是一條專門對在线免费观看羞羞视频館觀眾廳安全出口數目提出的規定要求。對於在线免费观看羞羞视频館觀眾廳每個安全出口的平均疏散人數提出不宜超過400~700人這一規定要求,現作如下說明:
1 一、二級耐火等級的在线免费观看羞羞视频館出觀眾廳的控製疏散時間,是根據容量規模的不同按3~4min考慮的,這主要是以國/內一部分已建成的在线免费观看羞羞视频館調查資料為依據的。如表6。
表6 部分在线免费观看羞羞视频館 觀眾廳疏散時間
另據對部分在线免费观看羞羞视频館的實測結果是:2000~5000座的觀眾廳其平均疏散時間為3.17min;5000~20000座的觀眾廳其平均疏散時間為4min。所以這次修訂規範時,決定將一、二級耐火等級在线免费观看羞羞视频館出觀眾廳的控製疏散時間定為3~4min,作為安全疏散設計的一個基本依據。
2 因為在线免费观看羞羞视频館觀眾廳容納人數的規模變化幅度是比較大的,由三、四千人到一、兩萬人,所以觀眾廳每個安全出口平均擔負的疏散人數也相應地有個變化的幅度,而這個變化又是和觀眾廳安全出口的設計寬度密切相關的。目前我國部分城市已建成的在线免费观看羞羞视频館觀眾廳安全出口的設計情況如表7。
表7 在线免费观看羞羞视频館 觀眾廳安全出口的設計 情況
從表7來看,在线免费观看羞羞视频館觀眾廳安全出口的平均寬度小約為1.91m;大約為2.75m。根據這樣一種寬度和規定出觀眾廳的控製疏散時間所概算出來的每個安全出口的平均疏散人數分別為:(1.91/0.55)×37×3=385人和(2.75/0.55)×37×4=740人。所以這次修訂規範時,決定將一、二級耐火等級在线免费观看羞羞视频館觀眾廳安全出口平均疏散的人數定為400~700人。在具體工程的疏散設計中,設計人員可以按照上述計算的方法,根據不同的容量規模,合理地確定觀眾廳安全出口的數目、寬度,以滿足規定的控製疏散時間的要求。如一座容量規模為8600人的一、二級耐火等級的在线免费观看羞羞视频館,如果觀眾廳的安全出口設計是14個,則每個出口的平均疏散人數為8600/14=614人,假如每個出口的寬度定為2.20m(即四股人流),則每個安全出口需要的疏散時間為614/(4×37)=4.15min,超過3.5min,不符合規範要求。因此應考慮增加安全出口的數目或加大安全出口的寬度。如果采取增加出口的數目的辦法,將安全出口數目增加到18個,則每個安全出口的平均疏散人數為8600/18=478人,每個安全出口需要的疏散時間則縮短為478/(4×37)=3.22min,不超過3.5min是符合規範要求的了。又如,容量規模為20000人的一座一、二級耐火等級的在线免费观看羞羞视频館,如果觀眾廳的安全出口數目設計為30個,則每個安全出口的平均疏散人數為20000/30=667 人,如每個出口的寬度定為2.20m,則每個出口需要的疏散時間為667/(4×37)=4.50min,超過了4min,不符合規範要求。如把每個出口的寬度加大為2.75m(即五股人流),則每個安全出口的疏散時間為667/(5×37)=3.60min,小於4min是符合規範要求的了。
3 在线免费观看羞羞视频館的疏散設計中,要注意將觀眾廳安全出口的數目與觀眾席位的連續排數和每排的連續座位數聯係起來加以綜合考慮。在這方麵原規範規定中是有所要求的,但是沒有能夠把兩者之間的關係串通在一起,這樣設計往往使人容易知其然而不知其所以然,在設計中就難免出現顧此失彼的現象。如圖1所示一個觀眾席位區,觀眾通過兩側的兩個出口進行疏散,其間共有可供四股人流通行的疏散走道,若規定出觀眾廳的控製疏散時間為3.5min,則該席位區多容納的觀眾席位數為4× 37×3.5=518人。在這種情況下,安全出口的寬度就不應小於2.20m;而觀眾席位區的連續排數如定為20排,則每一排的連續座位就不宜超過518/20=26個。如果一定要增加連續座位數,就必須相應加大疏散走道和安全出口的寬度,否則就會違反“來去相等”的設計原則了。
圖1 座位區示意圖
在线免费观看羞羞视频場的安全出口數目和每個安全出口平均疏散人數提出不宜超過1000~2000人,這一規定要求是根據在线免费观看羞羞视频場的不同容量按6~8min作為安全疏散設計的基本依據,這也是以國/內一部分在线免费观看羞羞视频場的資料為依據的,如表8。
表8 部分 在线免费观看羞羞视频場觀眾疏散時間
由於在线免费观看羞羞视频場規模相差較多,每個安全出口平均負擔的人數也有一個幅度,表9為我國部分在线免费观看羞羞视频場安全出口數目和每個安全出口的平均人數,由於在线免费观看羞羞视频場體形及分區的不同,看台可能不完全一致,出口寬度一般小為4股人流,大多為6股人流,由此按控製疏散時間6~8min計算出每個安全出口的平均疏散人數分別為:(2.4/0.55)×40×6=1046和(3.3/0.55)×40×8=1920,由此將在线免费观看羞羞视频場安全出口平均疏散的人數定為1000~2000人。
表9 在线免费观看羞羞视频場 安全出口和平均疏散人數
《建築設計防火規範》第5.3.11條說明:
這一條是專門對在线免费观看羞羞视频館建築安全疏散設計提出來的寬度指標要求。
1 在這一條中將在线免费观看羞羞视频館觀眾廳容量規模的低限數定為3000人。其理由主要有以下兩點:
1) 根據調查了解,國/內各大中城市早些時候建的或近年來新建的在线免费观看羞羞视频館,其容量規模多在3000人以上,甚至有些大城市中的區段在线免费观看羞羞视频館、大型企業的在线免费观看羞羞视频館也都在3000人以上,如上海市的靜安館(3200人)、盧灣館(3200人)、遼陽石油化工廠總廠在线免费观看羞羞视频館(4000人)等。
2) 在這次修改中決定把成人羞羞国产视频、電影院的觀眾廳與在线免费观看羞羞视频館的觀眾廳在疏散寬度指標上分別規定的一個重要原因,就是考慮到兩者之間在容量規模和室內空間方麵的差異,所以在規定容量規模的適用範圍時,理應拉開距離防止交叉現象,以免給設計人員帶來無所適從的難處。
2 將在线免费观看羞羞视频館觀眾廳容量規模的較高限數由原規範規定的6000人擴大到了20000人,這主要基於以下幾個原因:
1) 國/內各大、中城市近年來陸續建成使用的在线免费观看羞羞视频館有不少容量規模超過了6000人。如首都在线免费观看羞羞视频館、上海在线免费观看羞羞视频館、遼寧在线免费观看羞羞视频館、南京五台山在线免费观看羞羞视频館、山東在线免费观看羞羞视频館、福建在线免费观看羞羞视频館等,而且據了解目前尚有一些省會所在的城市,也正在進行容量規模為6000~10000人在线免费观看羞羞视频館的設計與建設,如陝西西安、甘肅蘭州、四川成都、湖北武漢等城市都在進行。同時今後隨著形勢的發展,國/內的全運會將會在更多的城市中輪流舉行;更多規模更大的國/際性在线免费观看羞羞视频比賽(如規模盛大的亞運會等)也將在我國舉行。為此,一些新的、規模較大的在线免费观看羞羞视频館還是要設計和建設的,所以規範作上述改動是很有必要的。
2) 從國/內在线免费观看羞羞视频館建設的實踐證明:容量規模大的在线免费观看羞羞视频館普遍存在著投資少、建設周期長、使用率和生產率低、經營管理費用大等問題。如上海在线免费观看羞羞视频館的總投資達3200萬元,建成投入使用以後,除了特別精彩的國/際比賽能滿座外,一般的國/際比賽的上座率隻有60%~70%。擦一次玻璃窗就要用1500元,頂棚上的108根裝飾金屬格片油漆一次要用11萬元,經常的全年維修費則多達20萬元。大型在线免费观看羞羞视频館的觀賞質量、觀賞效果都不如中、小型在线免费观看羞羞视频館,同時由於比賽場地與觀眾席位距離較遠,運動員的情緒與觀眾不易發生共鳴,也影響著競技水平的發揮。
從國外的情況來看,目前多已不傾向建設大型館了,尤其是電視廣播事業發達的。從近18~22屆(1964~1980年)的五屆國/際奧運會所使用的在线免费观看羞羞视频館規模來看,絕大多數都是中、小型館。隻有19屆奧運會建了一個容量規模超過20000人的在线免费观看羞羞视频館。所以這次修改規範時將容量規模的上限定到20000人是較為合適的。
3 本條規定中的疏散寬度指標,按照觀眾廳容量規模的大小分為三檔:3000~5000人一檔;5001~10000人一檔;10001~20000人一檔。其每個檔次中所規定的寬度指標(m/百人),是根據出觀眾廳的疏散時間分別控製在3min、3.5min和4min這一基本要求來確定的。這樣按照計算公式:
計算出來的一、二級耐火等級建築觀眾廳中每百人所需要的疏散寬度為:
平坡地麵:B1=0.55×100/3×43=0.426取0.43
B2=0.55×100/3.5×43=0.356取0.37
B3=0.55×100/4×43=0.319取0.32
階梯地麵:B1=0.55×100/3×37=0.495取0.50
B2=0.55×100/3.5×37=0.424取0.43
B3=0.55×100/4×37=0.371取0.37
4 根據規定的疏散寬度指標計算出來的安全出口總寬度,隻是實際需要設計的概算寬度,在後具體確定安全出口的設計寬度時,還需要對每個安全出口進行細致的核算和必要的調整,如一座容量規模為10000人的在线免费观看羞羞视频館,耐火等級為二級。按上述規定疏散寬度指標計算出來的安全出口總寬度為100×0.43=43m。在具體確定安全出口時,如果設計16個安全出口,則每個出口的平均疏散人數為625人,每個出口的平均寬度為43/16=2.68m。如果每個出口的寬度采用2.68m,那就隻能通過4股人流,這樣計算出來的疏散時間為:625/(4×37)=4.22min,因為大於3.5min,是不符合規範要求的,如果將每個出口的設計寬度調整為2.75m,那就能夠通過5股人流了,這樣計算出來的疏散時間則是:625/(5×37)=3.38min<3.5min,是符合規範要求的了。但是這樣反算出來的寬度指標則是16×2.75/100=0.44m/百人,比原指標調高了2%。
5 規範表後麵增加一條“注”,明確了采用指標進行計算和選定疏散寬度時的一條原則:即容量規模大的所計算出來的需要寬度,不應小於容量規模小的所計算出來的需要寬度。如果前者小於後者,應按大者數據采用。如一座容量規模為5400人的在线免费观看羞羞视频館,按規定指標計算出來的疏散寬度為54×0.43=23.22m,而一座容量規模為5000人的在线免费观看羞羞视频館,按規定指標計算出來的疏散寬度則為50×0.50=25m,在這種情況下就明確采用後者數據為準。
6 在线免费观看羞羞视频館觀眾廳內縱橫走道的布置是疏散設計中的一個重要內容,在工程設計中應注意以下幾點:
1) 觀眾席位中的縱走道擔負著把全部觀眾疏散到安全出口的重要功能,因此在觀眾席位中不設橫走道的情況下,其通向安全出口的縱走道設計總寬度應與觀眾廳安全出口的設計總寬度相等。
2) 觀眾席位中的橫走道可以起到調劑安全出口人流密度和加大出口疏散流通能力的作用,所以一般容量規模超過6000人或每個安全出口設計的通過人流股數超過四股時,宜在觀眾席位中設置橫走道。
3) 經過觀眾席中的縱橫走道通向安全出口的設計人流股數與安全出口設計的通行股數,應符合“來去相等”的原則。如安全出口設計的寬度為2.2m,那麽經過縱、橫走道通向安全出口的人流股數不宜大於4股,超過了就會造成出口處堵塞以致延誤了疏散時間。反之,如果經縱橫走道通向安全出口的人流股數小於安全出口的設計通行股數,則不能充分發揮安全出口的疏散作用,在一定程度上造成浪費現象。
在线免费观看羞羞视频場的安全疏散設計可參照上述說明辦理。在本條文中在线免费观看羞羞视频場的容量以40000人和60000人分檔。主要考慮40000人作為大中型城市來說,該容量比較合適,且滿足國/際足聯世界/杯足球賽預選賽的要求。而對特大城市而言,一般容量都在60000人大不超過80000人,因此據此製訂了分檔。而每個檔次中所規定的寬度指標(m/百人)是根據國/內外在线免费观看羞羞视频場設計和實測時間分別控製在6min、7min、8min的要求而確定的。
4.3.9 本條從使用和安全角度對於在线免费观看羞羞视频設施看台的欄杆提出應注意的各點。其中涉及安全的部分需要在執行中特別注意。
4.3.10 看台視線設計標準主要取決於視點平麵位置、視點距地麵高度和觀眾席前後排視線升高差(C值)三個因素,本條規定了在线免费观看羞羞视频場、館和遊泳池三類建築對典型場地的看台視線設計標準,其他運動項目的看台可參照執行。
在线免费观看羞羞视频場一般為田徑、足球綜合性場地,由於田徑場地布置及運動特點比較複雜,需要對多個視點進行比較,並考慮看台設計的技術經濟性,才能確定合理的視線設計標準,在實際設計工作中因為各個工程采用標準不同,對視線質量的評定也不一致。
本條對田徑場視點選擇的考慮如下:
1 西直道和終點線是各項徑賽重要的地點,選定西直道外邊線與終點線的交點作為視點位置,並以終點線附近看台為首排計算水平視距,這樣對全場絕大部分觀眾觀看環形跑道上及其內側範圍內所有田徑和足球比賽基本上不會有問題。假如看台內邊線平麵為橢圓形(即比賽場地外輪廓),環形跑道長軸偏東布置,看台內邊距跑道遠近不相同,其視線質量與設計視點處比較,有的要好一點,有的要差一點,但低標準應能看到運動員胸部(距地1.2m上下)。
2 對於位於跑道外側的田徑項目來說,其場地距看台較上述計算視距較近時,有何影響應作具體分析。撐杆跳高項目,屬於高空動作,任何位置都能看得到。障礙賽水池設在彎道外側內側均有,但使用機會很少,目前僅男子一項,影響不大。惟有跳遠(含三級跳遠),男女各二項,且較重要,按理論要求看到沙坑沙麵,因此應適當兼顧,在條件許可時調整視點位置,按佳效果設計。但當看台首排設計標高距場地較高,看台排數多或者有樓層看台時,計算結果看台逐排升高過大,技術經濟上不合理,甚至不可行,在這種情況下,可不多考慮。因為從全局來看,首先,這畢竟是個別項目,部分位置的觀眾受到影響;其次實際情況往往比理論計算的要好些,觀眾必要時會自動調整自己的姿態,采取側身、欠身甚至站起的方式,達到觀看運動員落地的一刹那;第三,設計視點距地麵高度規定±0,這一標準對徑賽項目來說是高標準,其中就考慮到了對跑道外側田徑項目的不利因素,已有一定程度的兼顧。
另外,冰球場地由於界牆的遮擋和影響,視點的選擇有一定特殊要求,故在條文中予以說明。
4.3.11 視線升高差(C值)每排0.12m指後一排觀眾視線通過前一排觀眾頭頂上空看到設計視點。C值每排0.06m,即每兩排C值為0.12m,指後一排觀眾視線須通過前一排兩位觀眾頭間空隙和前二排觀眾的頭頂上空才能無阻擋地看到設計視點。
當C值采用小於0.12m時,在影成人羞羞国产视频觀眾座席須前後排錯位設置,但對在线免费观看羞羞视频場館來說一般可不考慮,因為在线免费观看羞羞视频比賽場地大,觀眾視角大,無論是錯位還是不錯位排列,效果基本上相同,前一排觀眾對後一排觀眾,都會有一定的視線阻擋,主要靠觀眾自行調整姿態解決。
另外關於視線設計有圖解法、數解法(逐排推算法、直接計算法)等,此處不再詳述。
4.3.12 室外看台一般設有罩棚以遮陽避雨,為觀眾提供較好的觀看條件。國/際足聯對於世界/杯足球賽觀眾席提出需有2/3以上座席為屋頂所覆蓋,故本條對於罩棚設計的要點做出規定。
4.4 輔助用房和設施
4.4.1 輔助用房應包括觀眾(含貴賓、殘疾人)用房、運動員用房、競賽管理用房、新聞媒介用房、計時記分用房、廣播電視用房、技術設備用房和場館運營用房等,其功能布局應滿足比賽要求,便於使用和管理,並應解決好平時與賽時的結合,具有通用性和靈活性。
4.4.2 觀眾用房應符合下列要求:
1 觀眾用房(含貴賓、殘疾人)應與其看台區接近,麵積應與其使用要求及使用人數相一致,並配置相應的服務設施;
2 一般觀眾休息區可根據場、館性質和當地氣候條件,采取位於室內、室外或室內外結合的方式;
3 貴賓休息區應與一般觀眾休息區分開,並設單獨出入口;
4 觀眾用房低標準應符合表4.4.2-1的規定。
表4.4.2-1 觀眾用房標準
5 應設觀眾使用的廁所。廁所應設前室,廁所門不得開向比賽大廳,衛生器具應符合表4.4.2-2和表4.4.2-3的規定。
表4.4.2-2 貴賓廁所廁位指標(廁位/人數)
表4.4.2-3 觀眾廁所廁位指標
6 男女廁內均應設殘疾人專用便器或單獨設置專用廁所。
4.4.3 運動員用房應符合下列規定:
1 運動員用房應包括運動員休息室、興奮劑檢查室、醫務急救室和檢錄處等;
2 運動員休息室應由更衣室、休息室、廁所、盥洗室、淋浴等成套組合布置,根據需要設置按摩台等;
3 醫務急救室應接近比賽場地或運動員出人口,門外應有急救車停放處;
4 檢錄處應位於比賽場地運動員入場口和熱身場地之間;
5 運動員用房除比賽時運動員使用外,也應具有一般使用者利用的可能性;
6 運動員用房低標準應符合表4.4.3規定。
表4.4.3 運動員用房標準
4.4.4 競賽管理用房應符合下列要求:
1 競賽管理用房應包括組委會、管理人員辦公、會議、仲裁錄放、編輯打字、複印、數據處理、競賽指揮、裁判員休息室、頒獎準備室和賽後控製中/心等;
2 競賽管理用房低標準應符合表4.4.4-1和表4.4.4-2的規定。
表4.4.4-1 競賽管理用房標準(一)
表4.4.4-2 競賽管理用房標準(二)
3 根據實際需要安排場館工作人員的休息及更衣室。
4.4.5 新聞媒介用房應符合下列要求:
1 新聞媒介用房應包括新聞官員辦公、記者工作用房、電傳室、郵電所和無線電通訊機房等。
2 新聞媒介用房低標準應符合表4.4.5的規定。
表4.4.5 新聞媒介用房標準
4.4.6 計時記分用房應符合下列要求:
1 計時記分用房應包括計時控製,計時與終點攝影轉換, 屏幕控製室,數據處理室等;
2 計時記分牌位置應能使全場絕大部分觀眾看清,其尺寸及顯示方式宜根據不同項目特點和使用標準確定;
3 室外計時記分裝置顯示麵宜朝北背陽,室內館側牆上計時記分裝置底部距地應大於2.5m,當置於賽場上空時,其位置和安放高度不應影響比賽;
4 控製室應能直視場地、裁判席和顯示牌麵;
5 控製室內應設升降旗的控製台;
6 計時記分用房低標準應符合表4.4.6的規定。
表4.4.6 計時記分用房標準
4.4.7 廣播電視用房應符合下列要求:
1 宜設置廣播電視人員專用出入口和通道,出入口附近應能停放電視轉播車,設置電視設備接線室,並提供臨時電纜的鋪放條件;
2 應考慮架設電視攝像機和微波天線位置;
3 廣播電視用房配置標準應符合表4.4.7的規定。
4 播音室、評論員室應能直視比賽場地、主席台和顯示牌等。
表4.4.7 廣播電視用房標準
4.4.8 技術設備用房應符合下列要求:
1 應包括燈光控製室,消防控製室,器材庫,變配電室和其他機房等;
2 燈光控製室應能看到主席台、比賽場地和比賽場地上空的全部燈光;
3 消防控製室宜位於首層並與比賽場內外聯係方便,應有直通室外的安全出口;
4 器材庫和比賽、練習場地聯係方便;器材應能水平或垂直運輸;應有較好的通風條件;出入口大小及門的開啟方向應符合器材的運輸需要;
5 技術設備用房低標準應符合表4.4.8規定。
表4.4.8 技術用房配置標準
6 當泵房、發電機房、空調機組等設備安放在場館內時,應避免設備產生的噪聲對比賽區和觀眾區的影響。
條文說明
4.4 輔助用房和設施
4.4.1 本條列出了在线免费观看羞羞视频設施輔助用房的基本內容及布置原則,在實際操作中應根據設施等級、使用目的、運營方式等不同而區別對待。
4.4.2~4.4.3 以下各條對在线免费观看羞羞视频設施的相關用房按不同等級提出有關指標:
1 觀眾休息區麵積指標
觀眾休息廳是比賽和其他活動時供觀眾休息的場所,也常是觀眾由觀眾廳內疏散出來先到達的場所,因此既要考慮一定數量觀眾在這裏休息、如廁、飲水、購物等要求,也要考慮觀眾由這裏到設施外門的疏散,表10提出了國/內一些室內館的休息廳麵積指標。但近年來隨著在线免费观看羞羞视频產業化的發展,有關商服、娛樂、餐飲設施的增加也會帶來觀眾休息區麵積的變化。
表10 我國部分在线免费观看羞羞视频館休息廳麵積統計表
2 關於觀眾廁位指標的考慮
表11是我國一些在线免费观看羞羞视频館廁所的數量統計,從使用情況看,由於觀眾使用時間集中,因此常產生排隊現象,同時由於設施活動的多樣性,使女性觀眾增加,也使女廁的擁擠程度增加。
表11 我國部分在线免费观看羞羞视频館廁所器具數量統計表
北京市建築設計院20世紀80年代的調查提出男廁按每250人1個大便器3個小便鬥,女廁所按每100人1個大便池即可,即每千人觀眾男廁設3個大便池,9個小便鬥,女廁設5個大便池。
在1995年出版的建設設計資料集中提出參考指標見表12。
表12 廁所衛生潔具數量參考量
在《劇場建築設計規範》JGJ 57—2000中提出:
男廁應按每100座設一個大便器,每40座設一個小便器或0.6m長小便槽,每150座設一個洗手盆。
女廁應按每25座設一個大便器,每150座設一個洗手盆。
男女廁所廁位數比率為1:1。
國外有關的廁所參考指標如下:
德國足協提出千人指標為12,其中男女之比為3:1,大小便器之比為1:4。
澳大利亞悉尼奧運會主會場的廁所指標見表13。
表13 悉尼奧運會主會場廁所指標
本條中觀眾廁位的指標即參考以上規定,結合當前的使用特點訂出。其中男女比例考慮了設施的多功能使用和女性觀眾實際的增加而定為1:1。
3 運動員用房中所列出的房間係根據比賽時的基本要求設置,運動員休息室需根據隊員的多少、比賽隊的數目和安排來合理設置。
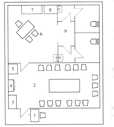
此處附國/際田聯建議興奮劑檢查的內容和平麵,見圖2。
圖2 興奮劑檢查室的分布、安裝和設備
1-入口處;2-等候室;3-雜誌;4-電視機;5-冰箱/飲料;6-興奮劑檢查官員室;7-儀器桌和櫃;8-冰箱;9-廁所間
4.4.4 本條規定了作為比賽設施時,在競賽管理用房方麵的基本要求,由於比賽的規模和特點不同,在麵積和內容上也會有所差別。
4.4.5 新聞媒介主要指新聞官員和圖文記者的工作用房,本條提出了一些基本要求,新聞發布廳、新聞記者的餐飲服務等未列入其中。由於比賽項目和規模的不同,媒體和記錄的數量也會有較大差別,需根據具體情況而定。另外,隨著計算機技術的發展,網絡化、數字化的特點,工作用房和內容還會有所變化和調整。
4.4.6 計時記分用房應根據不同競賽項目對於計時、記分的不同要求而相應設置。
4.4.7 廣播、電視等傳媒是在线免费观看羞羞视频設施,尤其是比賽設施的重要使用對象,隨著傳輸技術的發展,對於有關的設備和用房的要求也會越來越高,本條列出了主要的用房內容及配置標準。
4.4.8本條指在线免费观看羞羞视频設施的技術用房的主要內容與基本麵積標準,其中器材庫的大小需視在线免费观看羞羞视频設施的規模、活動內容、管理方式有所調整。
因篇幅有限請到資料下載 下載完整文件。
還可以了解更多關於會議室解決方案、產品和案例 等信息。
還可以了解更多關於在线免费观看羞羞视频場館解決方案、產品和案例 等信息。
還可以了解更多關於劇場成人羞羞国产视频解決方案、產品和案例 等信息。
還可以了解更多關於學校教育 解決方案、產品和案例 等信息。